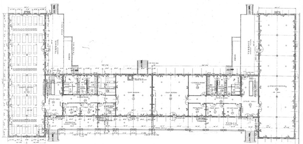
Plan showing the first floor layout of the 250-man barracks building, built at Fort Niagara in 1938-39.
New York State Office of Parks, Recreation and Historic Preservation
The advances made in artillery over the early 19th century, and demonstrated during the American Civil War, conclusively relegated masonry fortification to a thing of the past. Therefore, future development of U.S. Army posts across the country would focus more on unfortified buildings and open spaces rather than the ditches and walls of old. Such was the case in
Even as the Civil War was winding down, the army made plans to develop the large “military reserve” outside the fortified walls of
The lineup of barracks buildings at Fort Niagara, c. 1930s. Building 88 is located just into the oak grove in the far distance.
Private Collection
One of the last “permanent” structures built as part of the fort’s pre-WWII expansion beyond its 18th century walls was a brick, 250-man barracks. Placed at the southeastern end of the main line of barracks buildings, this barracks faced the
Plan showing the layout of "new" Fort Niagara in 1963, when the U.S. Army turned over the facility to the State of New York for the last time. Building 88 is indicated near the left center of the image. Note that it is divided into "North" and "South" components, as are many of the buildings. The large rifle range shown in the plan has been converted to soccer fields.
New York State Office of Parks, Recreation and Historic Preservation
Building 88 consisted of two main floors, a basement and attic. On the two main floors, it was divided in half by a substantial wall and fire door, with the areas north and south of the division being mirror images of each other. Each division of the first floor contained a squad room at the extreme end, designed to accommodate 48 men. Also included were quarters for cooks, non-commissioned officers and a single commissioned officer, as well as a day room, toilet and shower facilities. The second floor was similarly appointed. Instead of the day room, however, this floor featured a second squad room, designed to hold 15 men. Likewise, the commissioned officer’s room was replaced by a tailor’s shop. A porch ran the length of the building’s front, on both the first and second floors, between squad rooms at the extreme ends. The basement level of each division contained kitchen and dining facilities, as well as a number of storage spaces. A large boiler room was centrally located and served the entire structure.
From the 1920s until 1940, Fort Niagara was home to the 28th Infantry Regiment, which had earned fame as the spearhead of the 1st Infantry Division’s attack at Cantigny during World War I. Though the Army pulled out of the fort in the late 1940s, the buildings were utilized again during the Korean War and beyond. This time Building 88 was inhabited by the U.S. Navy, which used the building as an induction, intelligence and training center. The Navy continued to use the building until the early 1960s when the “new” fort was again turned over to New York State. Today the building is still known to many locals as the “Navy Building.”
An aerial view of the barracks and parade ground, looking southeast toward the village of Youngstown, c. 1960. Building 88 is the large building, located at the far end of the row of barracks, left center.
New York State Office of Parks, Recreation and Historic Preservation
Shortly after the military’s departure, many of the buildings of “new” Fort Niagara were demolished. Building 88 survived, however, and saw a different kind of resident during the late 1970s, when it was home to Camp Niagara of the Young Adult Conservation Corps. This federally-funded program existed from 1977-1982 and, at its peak, maintained 25,000 positions for youths aged 16-23 nationwide. The year-round program was designed to complete backlogs of high-priority work that had been identified at the state and federal level. Since the early 1980s, the barracks building has been devoid of permanent residents, though it is used for storage and as a workshop for the New York State Office of Parks, Recreation and Historic Preservation.
As more recent military structures go, Building 88 is an aesthetically pleasing one, located in the bucolic setting of what is now
Building 88 as it looks today. This image shows the front of the building, viewed from the northwest. Note the porch running the length of the first and second floors.
Douglas W. DeCroix Photo
Over the years, there have been a number of proposals for the adaptive reuse of the barracks building, as well as a number of the others. In 2006, the 4-bay warehouse was opened as a visitor center for Old Fort Niagara and several of the other buildings are being used in a variety of ways. Plans for the barracks itself have centered on possible reuse as a conference facility and hotel. These plans have also historically called for a restored complex that would include the theater and commandant’s quarters nearby.
Previous proposals have foundered for various reasons. It is possible, however, that a more recent proposal for the adaptive reuse of these three structures may well succeed. Due to their historic significance, such reuse would have to maintain the historic integrity of these structures, while making appropriate alterations and upgrades so that they might live again. For years, the former rifle range has echoed to the sounds of soccer players, and the former streets and parade grounds have been the scenes of picnics, bike rides and dog walks. All this while the last structural vestiges of its military past have stood by as mute witnesses. Should the latest proposal succeed, perhaps these precious buildings will once again resonate with the sounds of human occupancy; finding new life while preserving this important period in the history of the site.
